ReRender

บ้านเดี่ยว,
ทาวน์เฮาส์แบบอุตสาหกรรมชิค
ภาพต้นฉบับ
Source Image
อัปโหลดเมื่อ
ภาพที่สร้าง(960x768)
source
0.43%
Result Images
Result Images

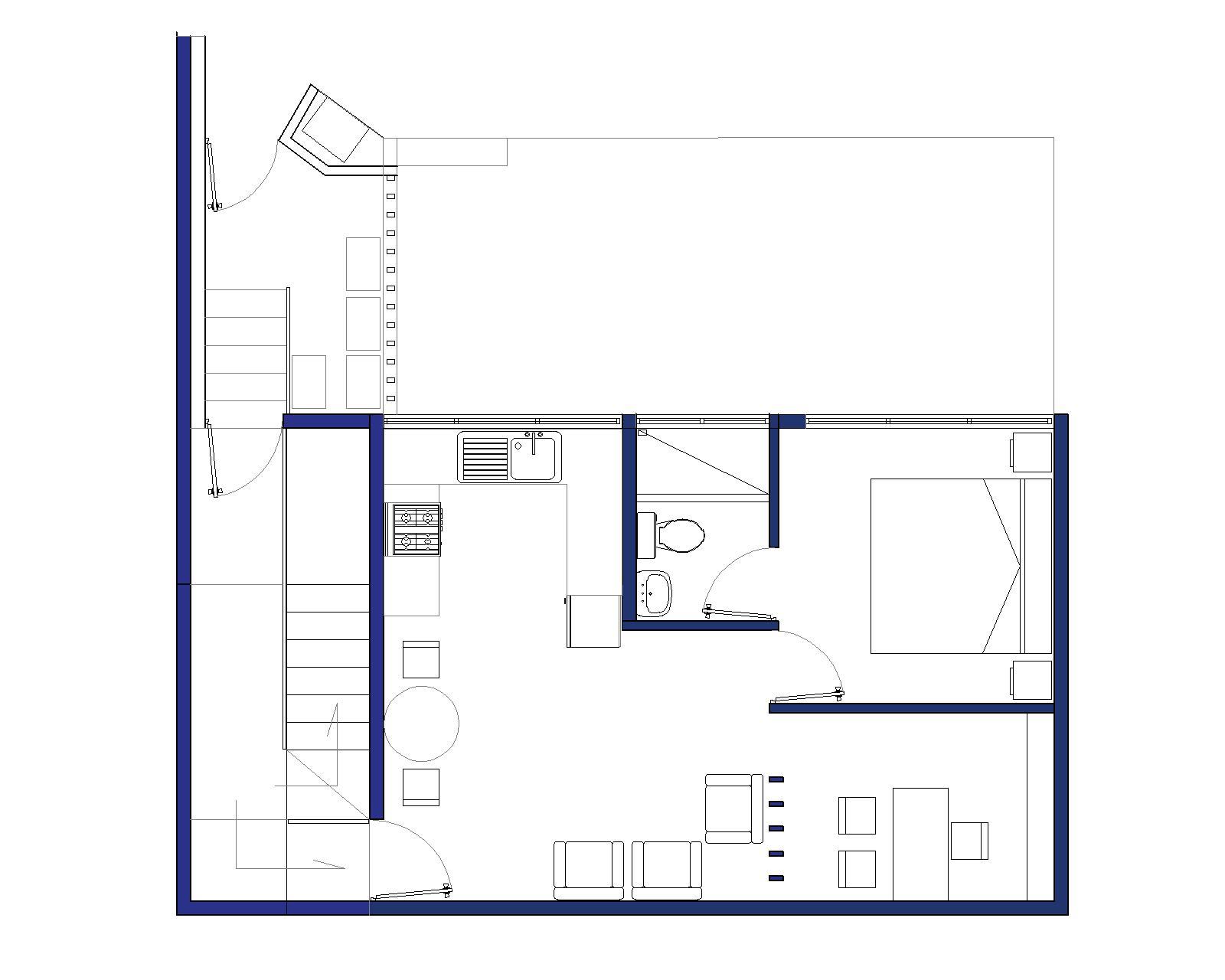
An incredibly lifelike, richly detailed, photorealistic **floorplan photo** of an **industrial chic townhouse** designed as a **single-family home**. The scene is illuminated by bright, even lighting, creating a clean and functional atmosphere. Captured with a wide-angle lens, emphasizing the efficient layout and the interplay of **steel** accents throughout the interior. The photograph shows a compact yet cleverly designed living space. To the left, a staircase ascends, flanked by what appears to be integrated storage and a small entryway. Adjacent is a galley-style kitchen with a stovetop, sink, and ample counter space, suggesting practicality. This area opens into a living space furnished with a streamlined sofa, armchairs, and a coffee table, all with a minimalist aesthetic. Beyond this, a door leads to a compact bathroom, and further into the home, a bedroom is neatly arranged with a bed and nightstands. The overall impression is one of modern, urban living, where every square inch is utilized with a focus on clean lines and durable materials, hinting at the robust nature of **steel** construction.


Use the extensionSketchUp
Follow usInstagramYouTubeLinkedIn
Join the discussionReddit