คงโครงสร้าง


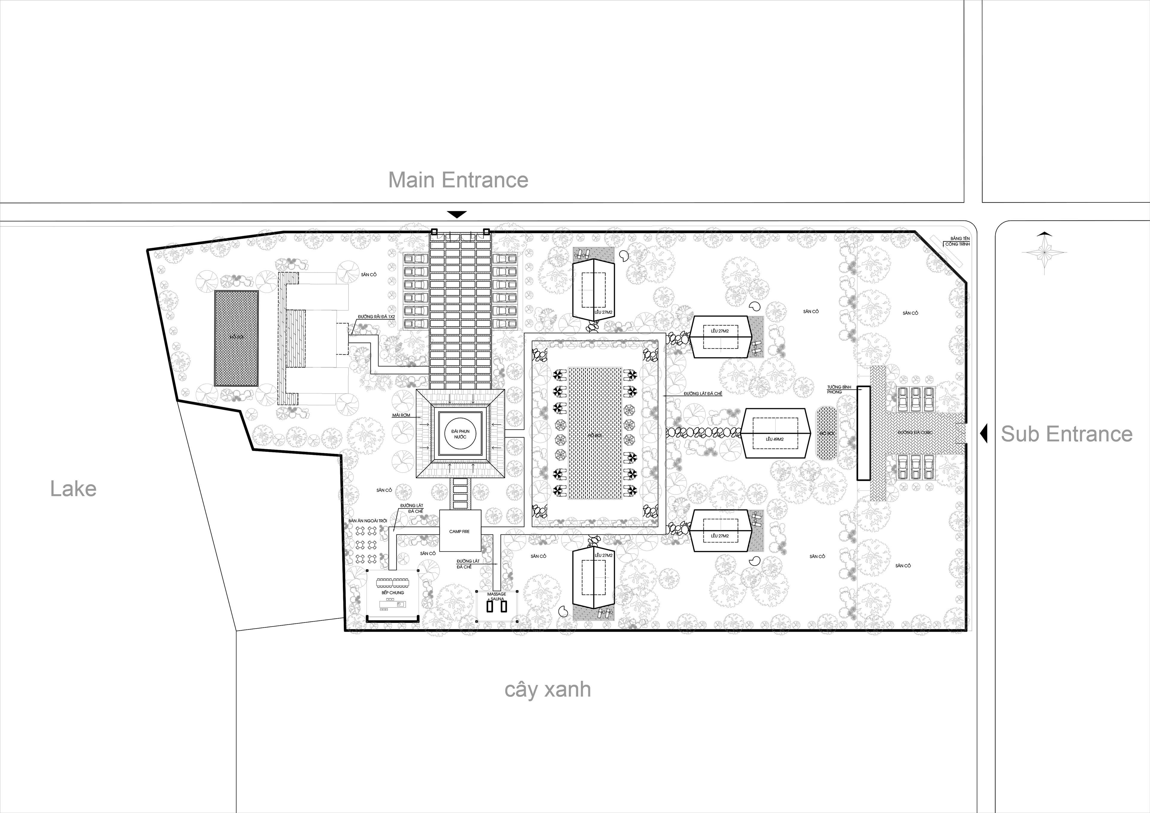
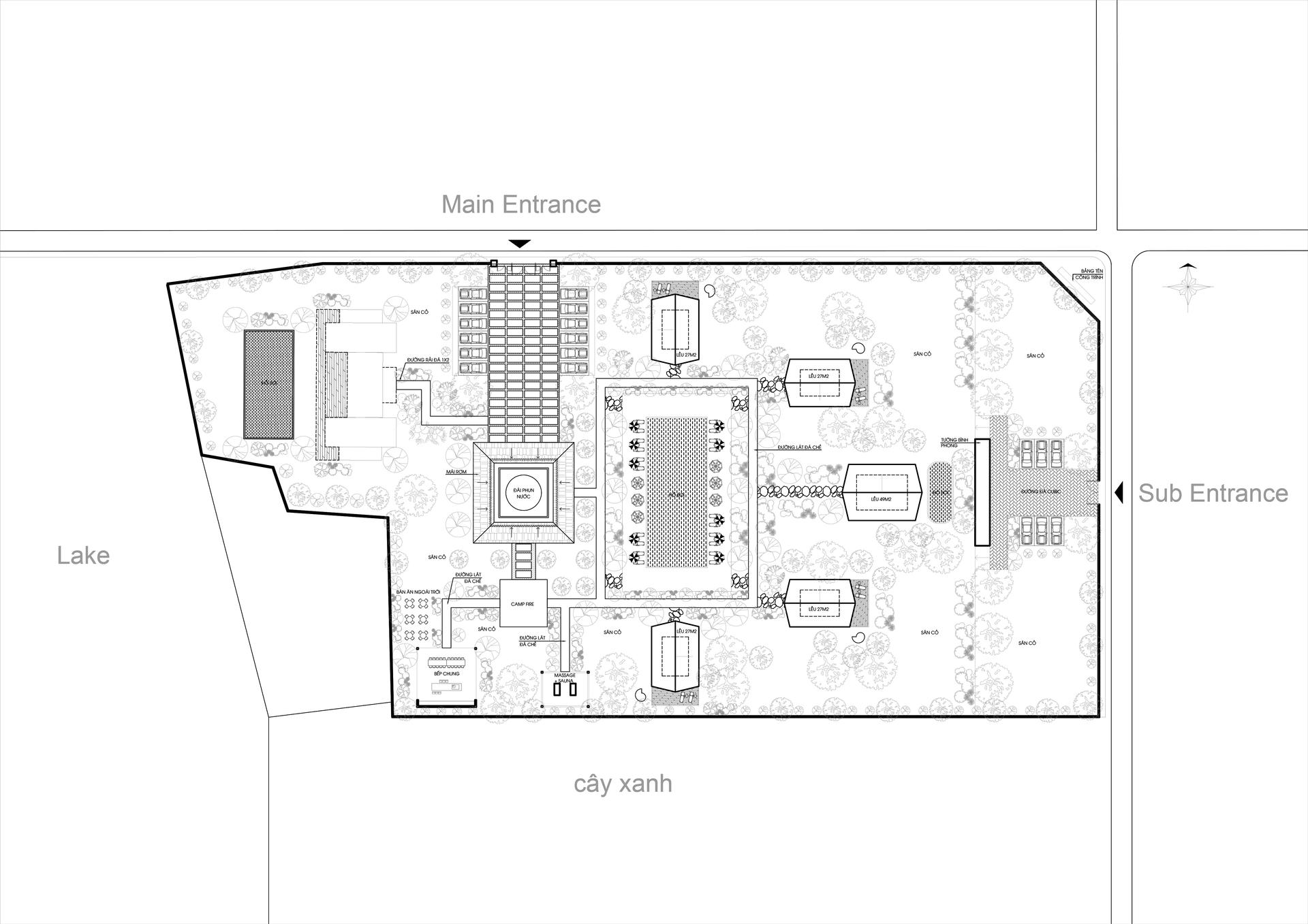
The photo captures an aerial view of a resort, presenting a sleek and internationally inspired design with a focus on natural elements and paved pathways. A striking 10x25 meter pool dominates the central area, surrounded by a generous 4-meter walkway, inviting relaxation under the open sky. To the north, the main entrance is a sophisticated blend of alternating pavers and lush green grass, hinting at a grand arrival. The secondary entrance, to the east, is paved with rustic cubic stones, guiding visitors towards the resort's amenities. Various cabanas, some with 27m² and others with 49m², are strategically placed throughout the property, each accessed by pathways made of split stones. The landscape is a vibrant tapestry of manicured lawns and mature trees, creating a serene and picturesque environment. A calm lake borders the western edge of the resort, adding to the tranquil ambiance. The overall composition suggests a well-organized and aesthetically pleasing resort designed for comfort and immersion in nature.