ReRender

ร้านอาหาร,
คอนเทมโพรารีแบบแคนติลีเวอร์
ภาพต้นฉบับ
Source Image
อัปโหลดเมื่อ
ภาพที่สร้าง(1088x768)
source
2.89%
Result Images
Result Images
Result Images
ดูเพิ่มเติม

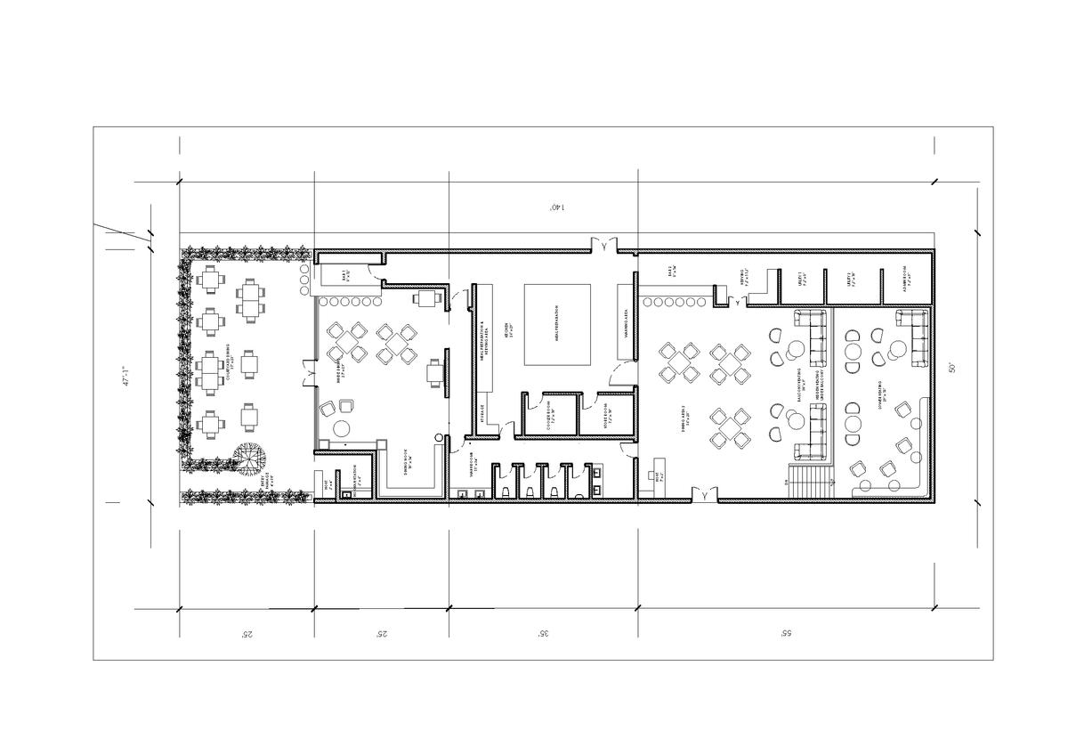
An incredibly lifelike, richly detailed, photorealistic floorplan photo of a contemporary tropical restaurant captured from an aerial perspective. The scene is illuminated by a warm sunset, casting long shadows and highlighting the vibrant colors of a summer evening. The architectural style is cantilevered and modern, with clean lines and expansive glass walls that blur the distinction between indoors and outdoors. The restaurant is divided into distinct zones: an outdoor seating area with stone pavers, lush greenery, and well-appointed tables and chairs; a main dining area with a contemporary open layout, featuring multiple seating arrangements clustered around decorative elements; and a bar area that appears to be the heart of the establishment, complete with bar stools and what looks to be a small lounge. Interior spaces like restrooms and service areas are clearly delineated. The overall atmosphere is inviting and sophisticated, suggesting a serene and luxurious dining experience under the tropical sky, with a clear view of the evening's spectacular descent. The composition is meticulously organized, showcasing the flow and functionality of the space with a keen eye for detail in furniture placement and spatial design.


Use the extensionSketchUp
Follow usInstagramYouTubeLinkedIn
Join the discussionReddit