ReRender

บ้านเดี่ยว,
อีโคฟิวทูริซึม
ภาพต้นฉบับ
Source Image
อัปโหลดเมื่อ
ภาพที่สร้าง(2200x768)
source
3.69%
Result Images
Result Images
Result Images

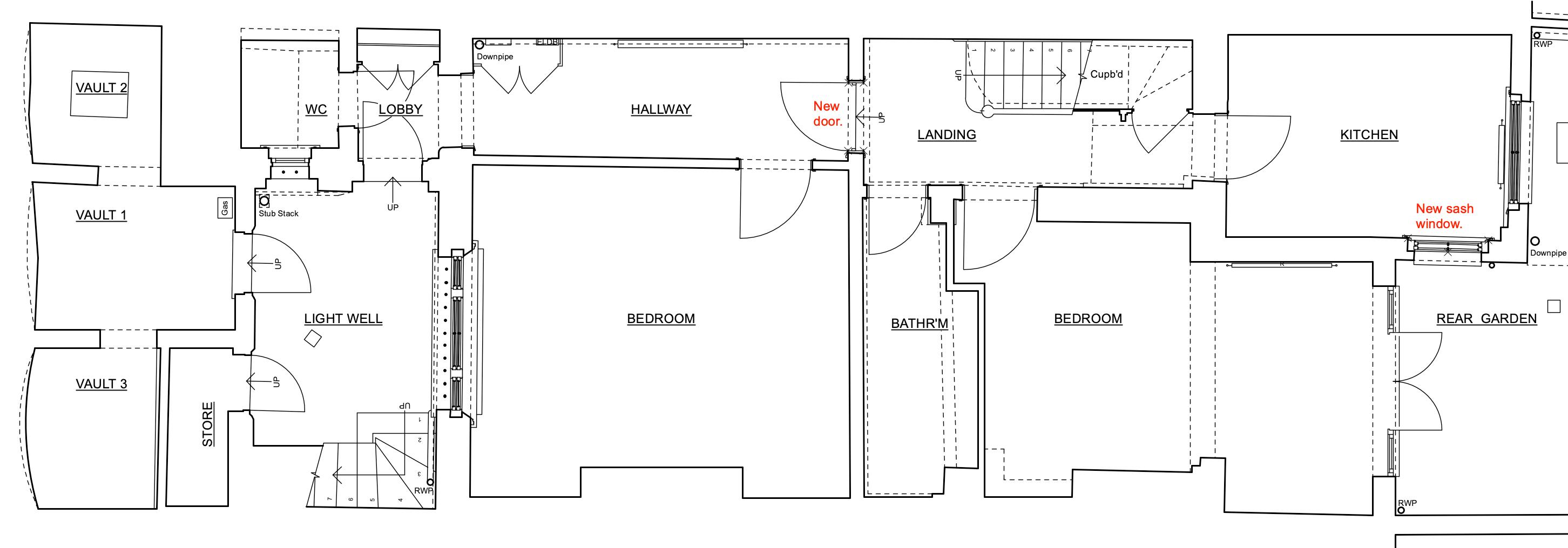
An incredibly lifelike, richly detailed, photorealistic floorplan photo of a single-family home rendered in a clear, crisp style evoking eco-futurism. The scene is illuminated by the warm, diffused glow of a sunset, casting long shadows that subtly highlight the precise architectural lines and the implied textures of concrete and modern materials. Captured with a wide-angle lens from a slightly elevated perspective, the expansive floorplan unfolds, showcasing a series of interconnected rooms such as multiple "Vault" storage areas, a "Light Well," a "Store," a "WC," a "Lobby," a spacious "Hallway," two "Bedrooms," a "Bathrm," a "Landing" with a staircase, and a "Kitchen" leading out to a "Rear Garden." The springtime clarity of the air is palpable, with sharp, defined edges for walls, doors, and windows, including a prominent "New sash window" in the kitchen. Though devoid of furnishings, the photograph conveys a sense of potential and modern living, the starkness of the layout lending itself to the envisioned eco-futuristic aesthetic. The composition is meticulously organized, with each room clearly delineated and its function labeled, creating a blueprint for a sustainable and technologically advanced dwelling. The depth and perspective seamlessly guide the viewer's eye through the entire structure, from the subterranean vaults to the garden beyond.


Use the extensionSketchUp
Follow usInstagramYouTubeLinkedIn
Join the discussionReddit